
As calhas da estrutura de aço são um componente crucial do sistema de drenagem do telhado de um edifício. Sua função principal é coletar água da chuva do telhado, direcioná -la para tubos verticais e depois descarregá -la para o sistema de drenagem externa, impedindo que ele corroa diretamente as paredes ou impeça as fundações. O design e a instalação do produto de Liweiyuan são caracterizados por alta resistência e peso leve, garantindo drenagem suave e durabilidade excepcional.
As calhas da estrutura de aço são um componente crucial do sistema de drenagem do telhado de um edifício. Sua função principal é coletar água da chuva do telhado, direcioná -la para tubos verticais e depois descarregá -la para o sistema de drenagem externa, impedindo que ele corroa diretamente as paredes ou impeça as fundações. O design e a instalação do produto de Liweiyuan são caracterizados por alta resistência e peso leve, garantindo drenagem suave e durabilidade excepcional.
A calha da estrutura de aço de Liweiyuan é feita de materiais resistentes à corrosão e resistentes a impactos.
Nosso produto é galvanizado, oferecendo excelente resistência à corrosão, baixo custo e uma longa vida útil. Disponível em espessuras de 1,5-2,5 mm, é adequado para a maioria das aplicações.
Feito de aço inoxidável, este produto oferece resistência à corrosão e é particularmente adequado para ambientes costeiros ou úmidos. Disponível em espessuras de 1,0-2,0 mm, oferece um preço mais alto, mas uma longa vida útil de serviço.
Nossos produtos de aço revestidos a cores são baseados em aço galvanizado, revestido com um revestimento resistente ao clima, como poliéster ou fluorocarboneto, tanto para resistência à corrosão quanto efeitos decorativos. Disponível em espessuras de 1,2-2,0 mm, elas são adequadas para edifícios que exigem um alto nível de apelo estético.
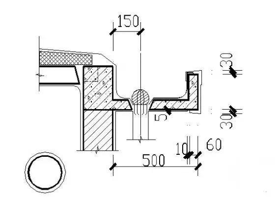
A forma estrutural da calha da estrutura de aço precisa ser adaptada à inclinação do telhado e ao design dos beirais. Os tipos comuns incluem em forma de U e em forma de V. O processo de instalação é o seguinte:
Nossas calhas de estrutura de aço usam suportes de calha de aço ângulo para prendê -los às vigas ou purlins dos beirais da estrutura de aço. O espaçamento do suporte é de 600-1000mm para garantir a distribuição de tensão uniforme na calha.
As calhas acabadas são pré-tamanho e conectadas no local usando conectores ou soldagem. O selante é necessário na junção entre a sarjeta e o deck do telhado.
Podemos instalar um piscar acima do deck do telhado. A extremidade inferior da calha deve ser colocada abaixo do deck do telhado e selada com selante. Os orifícios de drenagem devem ser fornecidos na parte inferior da sarjeta, principalmente para a conexão com os risers de água da chuva.
Nosso processo de fabricação de calha da estrutura de aço inclui o corte de acordo com as dimensões de desenho, flexão, pintura, inspeção acabada de produto, embalagem e envio. As calhas da estrutura de aço de Liweiyuan são projetadas e instaladas para garantir a resistência à corrosão, drenagem suave e durabilidade, garantindo uma drenagem eficiente.